Kranman T1850 – Uusi sukupolvi legendaarisesta kuormainvaunusta
Kranman T1850 on seuraava askel suositun T1750:n kehityksessä – entistä vahvempi, pidempi ja älykkäämpi ratkaisu ammattimaiseen puunkorjuuseen ja vaativaan käyttöön.
Yli 13 vuoden ja 1500 valmistetun T1750-vaunun kokemuksella kehitetty T1850 yhdistää tunnetun Kranman-laadun täysin uudistettuun rakenteeseen ja parannettuihin ominaisuuksiin.
Entistä vahvempi runko
T1850 on rakennettu kestämään. Rungossa käytetään korkealujuusterästä kriittisissä kohdissa ja materiaalipaksuudet on optimoitu – tuloksena entistä vankempi rakenne ilman painon lisäystä.
15 cm pidempi runko – enemmän kapasiteettia
Pidempi takaosa mahdollistaa pidempien puiden kuljettamisen säilyttäen tasapainoisen aisapainon. Lisäksi vaunuun mahtuu nyt neljä pankkoriviä, ja siirrettävä pankko tuo joustavuutta erilaisille kuormille.
Tehokas ja varma veto
Uudet, kaksoiskuulalaakeroidut vetomoottorit tarjoavat enemmän voimaa ja pitoa. Uusi itsepuhdistuva vetorulla takaa varman etenemisen myös haastavissa olosuhteissa.
Uusi Kranman KX30 Pro -kuormain
T1850:n yhteydessä esitellään täysin uusi Kranman KX30 Pro Series -kuormain.
-
Uusi geometria tekee liikkeistä entistä sulavampia
-
Vahvemmat sylinterit lisäävät nostovoimaa (650 kg á 1,5 m / 280 kg á 3,0 m)
-
Pidempi jatke kasvattaa ulottuvuutta
-
Paksummat A-rakenteen tukijalat lisäävät vakautta
Sähköhydraulinen runko-ohjaus
Valinnainen nivelohjaus tekee T1850:stä uskomattoman ketterän ahtaissa ja vaikeakulkuisissa maastoissa.
Uusi sähköhydraulinen ohjausjärjestelmä mahdollistaa hallinnan sekä ohjaussauvasta että ohjaustangon vieressä olevasta ohjauspaneelista – helppoa ja tarkkaa ohjausta myös peruutettaessa.
Käytännöllisiä yksityiskohtia
-
Suojalevy sermin takana estää puiden joutumisen sermin alle ja toimii kätevänä laskutasona.
-
Ruostumaton äänenvaimennin sivupoistolla vähentää melua, poistaa pakokaasut tehokkaasti ja parantaa näkyvyyttä.
-
Varustepaketit tekevät oikean mallin valinnasta entistä helpompaa – kaikki tarvittava yhdessä paketissa.
Kranman T1850 – luotettava, vahva ja monipuolinen kuormainvaunu sinulle, joka vaadit koneeltasi parasta.
Tekniset tiedot:
| Ominaisuus | Arvo |
| Leveys | 142 cm |
| Korkeus sermin yläreunaan | 165 cm |
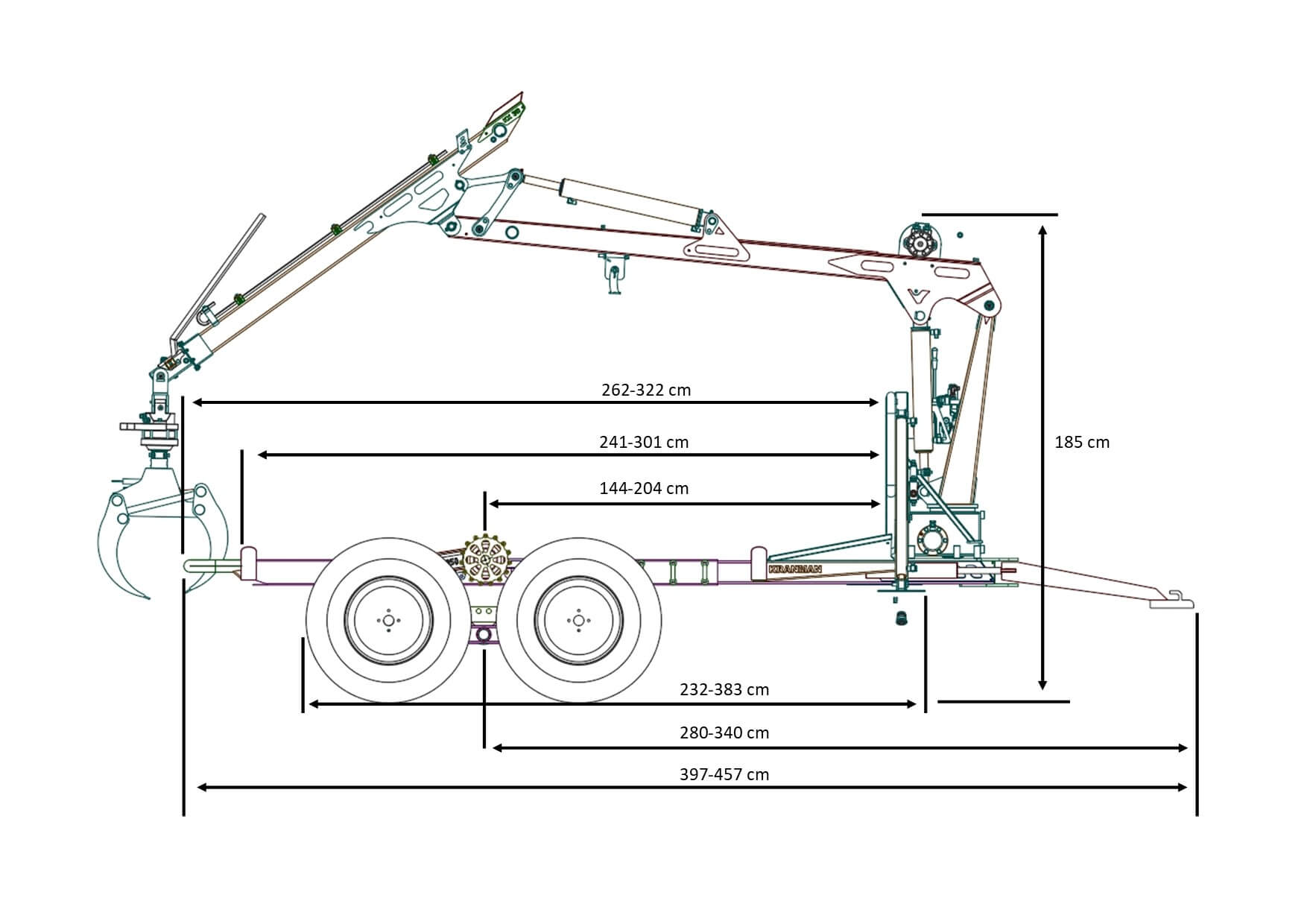
| Pituus sermistä takapankkoon | 241–301 cm |
| Vähimmäispituus etu- ja takapankon välillä | 183 cm |
| Kuormatila | 0,9 m² |
| Paino | 750 kg |
| Kokonaispituus | 397–457 cm |
| Runko | RHS 100×100 |
| Maavara | 40 cm |
| Maavara nosturin jalan kohdalla | 40 cm |
| Maavara teliakselin alla | 30 cm |
| Suurin kuorma | 1850 kg |
| Moottori (Honda) | GX270 |
| Hydrauliyksikkö (KS896) | 12 l/min / 160 bar |
| Käynnistys | Sähkö ja naru |
| Kuormain KX30 | 4,5 m ulottuvuus |
| Kuormain KX30 | 650 kg á 1,5 m |
| Hydraulivinssi HV500 | 25 m vaijeri |
Vertaile varustepaketteja – mitä sisältyy?
| Varuste | Basic | Comfort | Pro | Pro+ |
|---|---|---|---|---|
| Honda GX200 –moottori | x | |||
| Honda GX270 –moottori | x | x | x | |
| 30–50 kuormain | x | x | ||
| KX30 kuormain | x | x | ||
| Hydraulinen vinssi HV500 | x | x | x | |
| Monivipupaketti (hydrauliventtiilit) | x | x | x | |
| Kaksivipuinen EL on/off –paketti | x | |||
| Kuormaimen vaimennus | x | x | ||
| Työvalot 2×15 W | x | x | ||
| Renkaat 22×11-8 | x | |||
| Renkaat 300/65-12 | x | x | x | |
| Runko-ohjaus (vivulla) | x | |||
| Runko-ohjaus (sähköhydraulinen) | x | x | ||
| Sähkökäynnistin moottoriin | x | x | ||
| Kaksoispumppu | x | x | ||
| Yksi lisäpankko (yht. 3 kpl) | x | |||
| Kaksi lisäpankkoa (yht. 4 kpl) | x | |||
| Jarruventtiili | x | x | ||
| Ruostumaton äänenvaimennin | x | x | ||
| Suojalevy sermin takana | x | x | x |




















Arviot
Arvosteluja ei vielä ole